
HD Type European Hoist Elektrischer Einträger-Laufkran
Europäischer einzelner Träger-Laufkran ist die kompakte anhebende Maschinerie, die in der strengen Übereinstimmung mit FEM- und DIN-Standard entworfen und hergestellt wird, die mit neuer Technologie und schönem Design. Geteilt in allgemeine Art und Suspendierungart, Unterstützung die Verwendung des europäischen Standardelektrozugs, verwendbar für Werkstatt- und Lagermaterialbehandlung, große Teilepräzisionsversammlung und andere Plätze.
HD Type European Hoist Elektrischer Einträger-Laufkran
Kurze Beschreibung:
Europäischer einzelner Träger-Laufkran ist die kompakte anhebende Maschinerie, die in der strengen Übereinstimmung mit FEM- und DIN-Standard entworfen und hergestellt wird, die mit neuer Technologie und schönem Design. Geteilt in allgemeine Art und Suspendierungart, Unterstützung die Verwendung des europäischen Standardelektrozugs, verwendbar für Werkstatt- und Lagermaterialbehandlung, große Teilepräzisionsversammlung und andere Plätze.

Es konnte in der Maschinerieherstellung, in der Metallurgie, im Erdöl, in der Versteinerung, im Hafen, in der Bahn, in der zivilluftfahrt, in der Nahrung, in der Papierherstellung, im Aufbau, in der Elektronikindustriewerkstatt, im Lager und in anderen Materialhandhabungssituationen weit verbreitet verwendet werden. angewendet auf Material Handling, die präzise Positionierung erfordern, große Bauteile präzise Montagesituation.

Detaillierte Bilder:

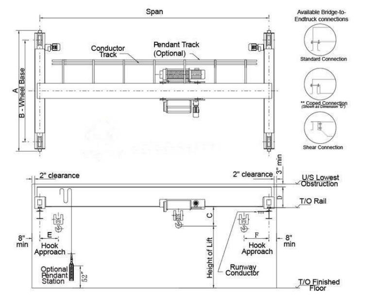
Skizzenzeichnung:

Technische Parameter:
Spanne | m | 7.5 | 10.5 | 13.5 | 16.5 | 19.5 | 22.5 | 25.5 |
Kapazität | t | 1 ~ 12,5 t | ||||||
Gesamtgewicht | kg | 1781 ~ 12086 | ||||||
Trolley Gewicht | kg | 405 ~ 740 | ||||||
Max. Radlast | kn | 13.5 ~ 90.94 | ||||||
Reise-Schiene | P24 ~ P43 | |||||||
Hubgeschwindigkeit | m / min | 0.8 / 5 | 0.8 / 5 | 0.8 / 5 | 0.8 / 5 | 0.8 / 5 | 0.8 / 5 | 0.8 / 5 |
Hochheben | m | ≥ 6 | ≥ 6 | ≥ 6 | ≥ 6 | ≥ 6 | ≥ 6 | ≥ 6 |
Gesamtmotorleistung | kw | 4.31 | 4.31 | 4.31 | 4.31 | 4.67 | 4.67 | 4.67 |
Krangeschwindigkeit | m / min | 3-30 | 3-30 | 3-30 | 3-30 | 3-30 | 3-30 | 3-30 |
Trolley-Geschwindigkeit | m / min | 2-20 | 2-20 | 2-20 | 2-20 | 2-20 | 2-20 | 2-20 |
Arbeitsaufgabe | M5 / A5 | |||||||


English
Eesti
українська
Nederlands
slovenčina
Gaeilgenah Éireann
Català
اردو
Cymraeg
Latviešu
Kreyòl Ayisyen
Svenska





